株式会社ハウスポートTOP > (戸建(売買))地域から探す > 亀岡市 > 亀岡 南つつじヶ丘大葉台一丁目 一戸建 > 物件詳細
■亀岡 南つつじヶ丘大葉台一丁目 一戸建■
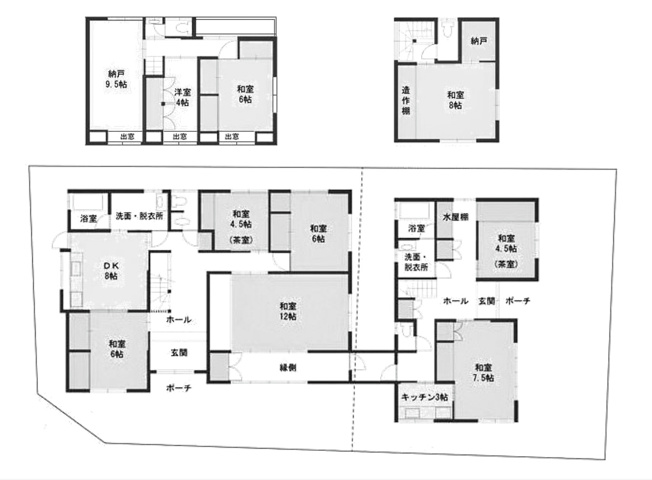
◇土地面積 約166.79坪
◇建延面積 約55.55坪











(※元利均等方式 金利5.00%まで ※返済年数5~50年まで入力できます)
(※ボーナスは年2回で計算しています。1000万円まで入力できます)
(※物件購入時、その他諸費用が発生する場合がございます)
| 所在地 | 京都府亀岡市南つつじケ丘大葉台1丁目 | ||
|---|---|---|---|
| 交通 | |||
| 間取り/詳細 | 9DK/ | 建物面積(坪数) | 183.68㎡(55.56坪) |
| 価格 | 3,600万円 | ||
| 駐車場/月額料金 | 有/- | ||
| 土地の敷金/保証金 | -/- | 借地料/借地期間 | -/- |
| 土地権利 | 所有権 | 土地面積(坪数) | 551.38㎡(166.79坪) |
| 傾斜地部分面積 | - | 路地状敷地 | - |
| 私道負担面積/セットバック | -/無 | 高圧線下面積 | - |
| 地目/地勢 | 宅地/- | 接道状況 | 一方(南 公道 6.0m) |
| 建ぺい率/容積率 | 50%/80% | 用途地域 | 第一種低層住居専用 |
| 都市計画 | 市街化区域 | 種別/構造 | 中古一戸建/木造 |
| 階建 | 2階建 | 築年月(築年数) | 1990年 4月 (築35年) |
| 総区画数/販売区画数 | -/- | 向き | 南 |
| 現況 | 空家 | その他の法令上の制限 | - |
| 取引態様/引渡時期 | 仲介/相談 | 建築確認番号 | - |
| 物件番号 | 98769933 | 取引条件の有効期限 | 2025年11月24日 |
| 設備条件 |
|
||
| 備考 |
◇区画整う閑静な住宅地 ◇第一種低層住居専用地域 ◇平成2年4月建築 ◇ゆとりある9DK ◇空家につきお気軽に現地確認して頂けます。 ◇内覧の際は周辺環境も合わせてご説明させて頂きます。 見学のご予約やご質問などは 0120-21-8050までお気軽にお電話ください。 ◆住宅ローン支払い例 月々100369円◆ (3600万円借入変動金利0.925% 30年返済の場合) ■お問い合わせ・見学予約も 資料請求ボタン からどうぞ。メール回答致します。 |
||
| 取扱会社 |
|
||
| QRコード |
このQRコードを読み取ることで、スマホでも物件情報を確認できます。 |
||
※地図上に表示される物件の位置は付近住所に所在することを表すものであり、実際の物件所在地とは異なる場合がございます。
亀岡 南つつじヶ丘大葉台一丁目 一戸建に関するこだわり条件から探す
亀岡市の町名から探す
路線から探す